L&Q to submit amended application but size remains unchanged

Mass, height and footprint to remain unchanged from original
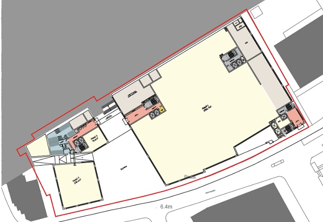
L&Q held a public exhibition this Thursday on their proposed amendments to the planning application for the Morrisons site. The exhibition boards can be downloaded here (pdf).
L&Q is a regulated charitable housing association who have bought the Morrisons site planning in March for a little over £28 million.
Planning permission was granted in April 2017 for Essential Living's redevelopment of the site containing Morrisons and the associated car park into 221 private rented sector (PRS) flats and supermarket which was subject to a complicated S106 agreement agreed in May 2018.
The expectation is to start demolishing the site in 2020 with construction to finish towards the end of 2023. LandQ are working with Hounslow Council to look at the possibility of setting up a temporary supermarket or providing shuttle buses.

A sketch of the proposals. View from Brentford High Street looking north
L&Q is preparing a Section73 application which will amend the existing application.

Single flexible large retail unit
You may contact the community engagement team with your feedback via lq-brentford-highst@connectpa.co.uk or ring 020 7592 9592. You can send a letter to L&Q Brentford High Street; c/o Connect; PO Box 67187; London SW1P 9SZ
June 10, 2019